
Pre-Approved ADU Plans Built for Faster Permitting in San Diego
Field-tested ADU layouts built around San Diego jurisdiction requirements. Reducing revisions, accelerating approvals, and protecting your build timeline.
Why Choose a Pre-Approved Plan?
- Reduced design timeline
- Fewer plan revisions
- Layouts built with San Diego County permitting in mind
- Predictable structural scope
- Faster path to permit submission
These are not generic templates. They’re structured, jurisdiction-aware plans built for predictable approval and buildability.
Select a proven layout and move forward with clarity instead of starting from scratch.
Available 85% Complete Pre-Approved ADU Plans
If speed, clarity, and predictable scope matter more than endless customization cycles, this is the most efficient way to build.
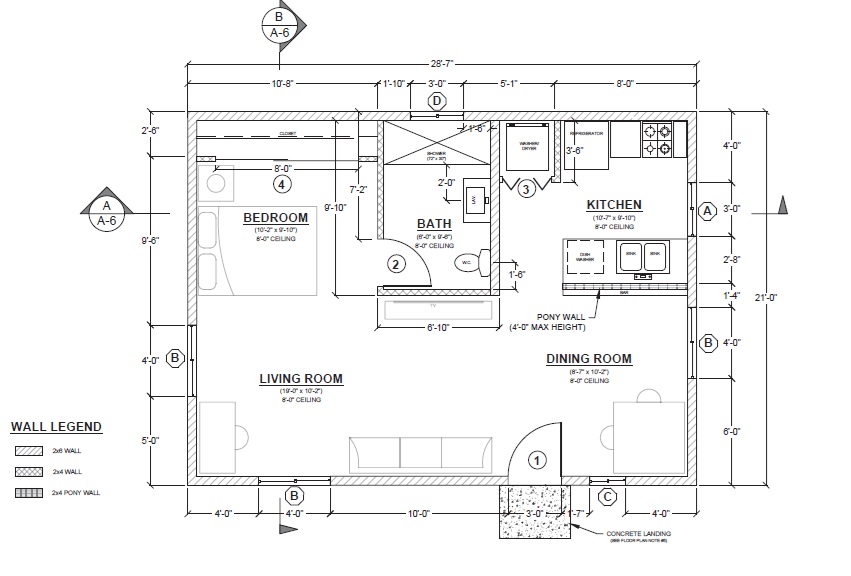
600 Sq Ft ADU
A compact, efficient one-bedroom ADU ideal for rental income, guest housing, or aging-in-place solutions.


Efficient footprint. Maximum flexibility. Ideal for rental income or independent living without overbuilding your lot.
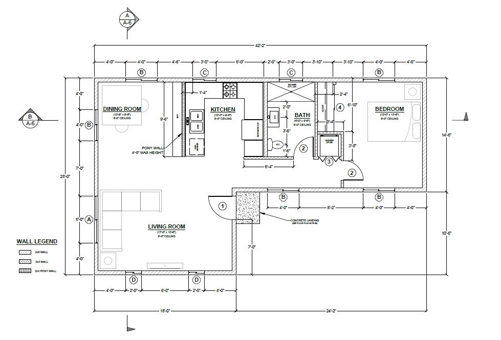
800 Sq Ft ADU
A balanced layout offering additional living space while maintaining a fast, permit-ready approval path.


Balanced design with defined living space. Optimized for approval efficiency and long-term usability.
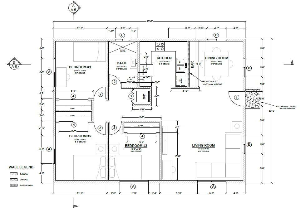
1200 Sq Ft ADU
A full size ADU designed for long-term living, multigenerational households, or maximum rental flexibility.


Full-scale living solution. Designed for multi-generational use or premium rental returns with predictable structural scope.
*Ask for more options
Not sure which plan fits your property?
Construction Method Note
These pre-approved ADU plans are structured for traditional stick-frame construction. Structural Insulated Panels (SIPs) can be incorporated through plan modifications and jurisdiction approval where applicable.
What Happens Next
Once you select a plan, we guide you through a structured, permit-first process:
- We review your property, zoning, and site constraints
- We confirm feasibility and discuss plan modifications if needed
- We guide you through permits, construction, and next steps
Every plan moves through the same disciplined framework used across all Elkins Build Group projects.
The fastest way to build a successful ADU in San Diego is to start with a structured plan, and a disciplined feasibility review.

